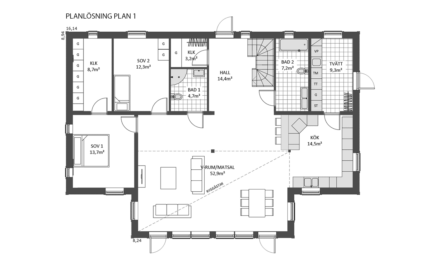
Przestronny 1,5-piętrowy dom z charakterem i potencjałem!.
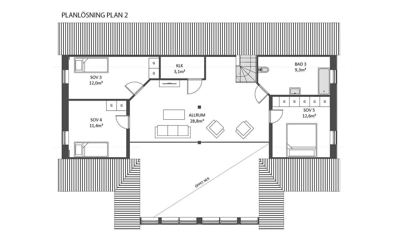
Kvällsjön to dom dla nieco większej rodziny z dwiema sypialniami lub oddzielnym gabinetem na pierwszym piętrze. Pustka nad salonem i jadalnią wraz z dużymi przeszkleniami tworzy magiczną przestrzeń.









