Nowoczesna stodoła z otwartym planem piętra
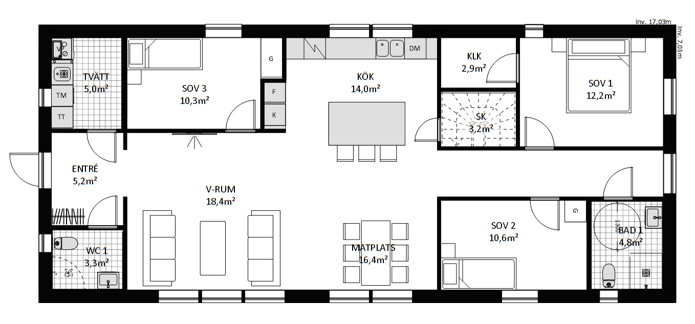
Stornäset to nowoczesny dom rodzinny w tradycyjnym stylu stodoły ze wszystkim, czego potrzebujesz Ty i Twoja rodzina, zoptymalizowany pod kątem maksymalnej powierzchni! Dom charakteryzuje się dobrą widocznością i przenikaniem światła dzięki lokalizacji, liczbie i wielkości okien. Dom ma trzy sypialnie, dwie toalety i otwarte przestrzenie dzienne, gdzie kuchnia, jadalnia i salon znajdują się w centralnej części domu. Istnieje również możliwość wybudowania tego domu z użytkowym poddaszem.










